 
 
易间咖啡 YiJian Cafe
(中关村店)
一處空間 , 幾多情緒 - 易間
把一件容易的事情, 用多種方式去思考,在簡單裡也能找到極致與變易,用一個有限的空間,去容納簡單的身軀複雜的情緒,並讓空間在情緒互動中產生特殊的意義。
這裡不僅僅是一處有氛圍的咖啡館,這裡更是一個多功能空間,提供人們交流與互動,可滿足小型演出,沙龍,展覽,辦公,會議等需求。
易間 為中國網易旗下的咖啡品牌,位於網易北京總部大樓,室外是大樓的下沉廣場,由於位址的開闊性,陽光透過大大的落地窗照射進來,即使是在寒冷的冬季,也暖洋洋的。
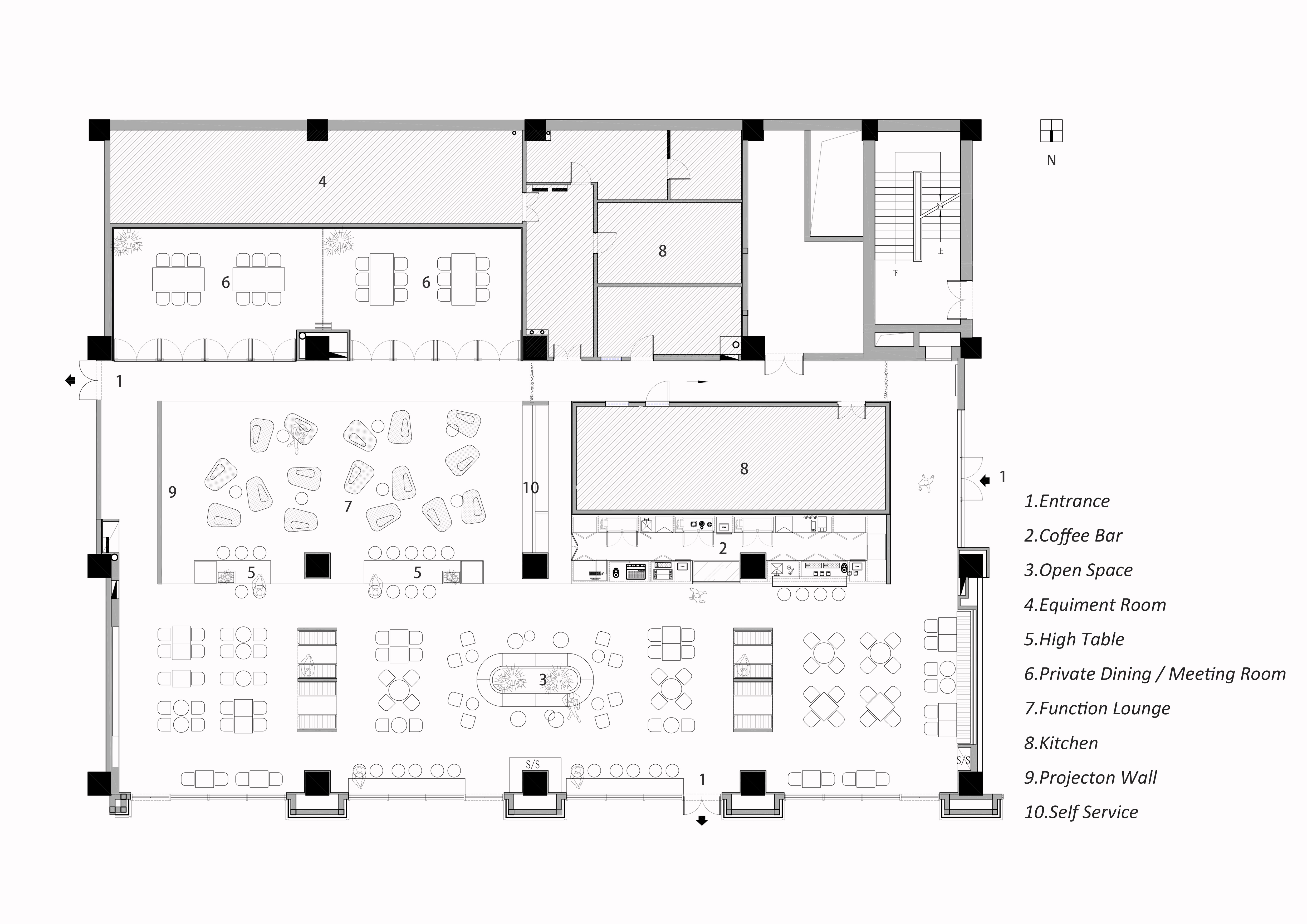
空間中有兩個門是可以通往其他空間的重要通道,規劃平面需留出主要通道。平面被通道分割為大大小小的矩形區域,按照功能分區。
空間,物理性表現為長度、寬度、高度。被形態所包圍、限定的空間為實空間,其他部分稱為虛擬空間,虛擬空間是依賴於實空間而存在的。離開實空間的虛擬空間是沒有意義的;反之,沒有虛擬空間,實空間也就無處存在。
整體空間看似簡單純粹甚至了無新意,實際上設計將簡單的3個盒子讓空間產生了虛實的結構關係。
將3個“盒子”置入到場所中,透過盒子不同的開口方向產生不同的正和負空間。滿足了各種不同的功能,比如吧台區、多功能區,卡座區等。盒子的不同開口方向和尺度,呈現出有趣的對比關係和節奏:私密與開放、實與虛、幽暗與明亮,傳達出不同的空間情緒。人在裡面活動時,空間和人的關係,以及人與人的關係變得更緊密而有趣,同時獲得一種沉浸式的空間體驗。
One Space with Multiple
Expressions
Think of an easy thing, then find different ways to approach the simplicity. Use the limited space to accommodate the complex emotions of the simplicity, and let the space give you a special meaning during the emotional interaction .
This is not just a cafe with an atmosphere, this is a multi-functional space that allows people to communicate and interact, which can meet the needs for small-scale performances, salons, exhibitions, conferences and co working.
Yijian Cafe is a coffee brand owned by China NetEase. The cafe is located on the ground floor of the NetEase Headquarters Building in Beijing, above the sunken plaza of the building. Due to the openness of the space, the sun shines through the large floor-to-ceiling windows, even in the cold winter, it is warm.
There are two doors in the space that are important passages which can be used for other spaces, and the plane leaves a main passage. The plane is divided into large and small rectangular areas by the channel, and partitioned according to function.
The space logical idea comes from Tai Chi yin and yang “Empty and Solid”. Surrounded by morphology, the limited space is a“Solid space”, and the other parts are “Empty spaces”. The “Empty”space is dependent on the solid space. The“Empty” space leaving the “Solid” space is meaningless; and on the contrary, without the “Empty” space, there is no place for the “Solid”space.
Based on the above concepts of “Empty and Solid” spaces, the "box" is put into place, producing different positive and negative spaces. A variety of functions could be met, such as a bar area, multi-functional area, deck seating areas, etc. The different opening directions and scales of the box present an interesting contrast and rhythm: privacy and openness, reality and emptiness, darkness and lightness- conveying different spatial emotions. When people are active inside, the relationship between space and people, and the relationship between people become closer and more interesting, and at the same time gain an immersive experience within the space.
 
 
 
 
 
 
 
 
 
 
 
 
